| ²é¿´: 1641 | »Ø¸´: 12 | ||
gruycleweeÈÙÓþ°æÖ÷ (ÎÄ̳¾«Ó¢)
|
[ÇóÖú]
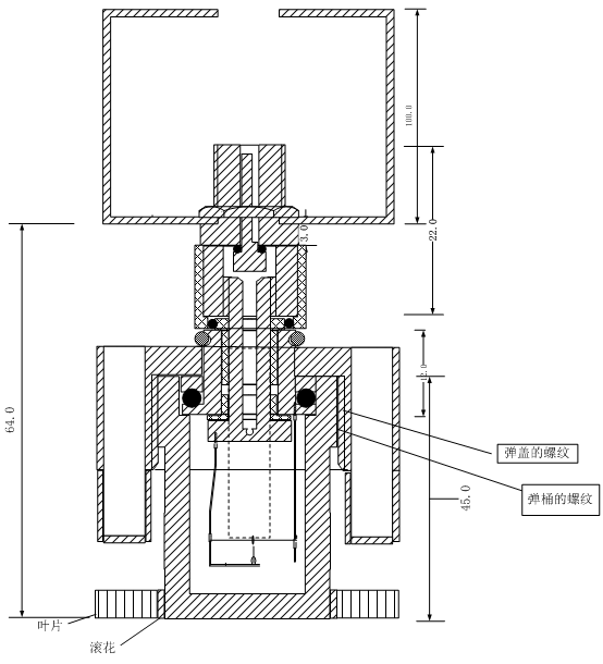
ÖØ½ðÇóÖú£º¸½Í¼ÂÝÎÆµÄÂݾࡢÂÝÑÀµÄ³ß´çÒÔ¼°ÂÝÎÆµÄ³¤¶ÈÈçºÎÈ·¶¨£¿ ÒÑÓÐ1È˲ÎÓë
|
|
![]() |
||
|
|
||
| »ØÌûÖ§³Ö ( ÏÔʾ֧³Ö¶È×î¸ßµÄǰ 50 Ãû ) | ||
º£·çÁÃÆðÒÂ½Ç½ð³æ (ÖøÃûдÊÖ)
ש¼Ò
|
||
![]() |
||
|
12Â¥2014-08-29 19:52:09
|
|
|
| ÆÕͨ»ØÌû | ||
zzh701129гæ (СÓÐÃûÆø)
|
||
![]() |
||
|
2Â¥2014-08-28 16:23:06
|
|
|
zzh701129гæ (СÓÐÃûÆø)
|
||
![]() |
||
|
3Â¥2014-08-28 16:24:26
|
|
|
gruycleweeÈÙÓþ°æÖ÷ (ÎÄ̳¾«Ó¢)
|
||
![]() |
||
|
4Â¥2014-08-28 16:39:36
|
|
|
xingyanling½ð³æ (³õÈëÎÄ̳)
|
||
|
5Â¥2014-08-28 18:41:26
|
|
|
xutaoneuÌú³æ (СÓÐÃûÆø)
|
||
|
6Â¥2014-08-28 20:17:01
|
|
|
Ò»ÏÒÒ»¾ªÃÎľ³æ (ÕýʽдÊÖ)
|
||
|
7Â¥2014-08-28 21:43:54
|
|
|
|
||
|
8Â¥2014-08-28 22:59:11
|
|
|
º£·çÁÃÆðÒÂ½Ç½ð³æ (ÖøÃûдÊÖ)
ש¼Ò
|
¡¾´ð°¸¡¿Ó¦Öú»ØÌû
¡ï ¡ï ¡ï ¡ï ¡ï ¡ï ¡ï ¡ï ¡ï ¡ï ¡ï ¡ï ¡ï ¡ï ¡ï ¡ï ¡ï ¡ï ¡ï ¡ï ¡ï ¡ï ¡ï ¡ï ¡ï ¡ï ¡ï ¡ï ¡ï ¡ï ¡ï ¡ï ¡ï ¡ï ¡ï ¡ï ¡ï ¡ï ¡ï ¡ï ¡ï ¡ï ¡ï ¡ï ¡ï ¡ï ¡ï ¡ï ¡ï ¡ï
¸Ðл²ÎÓ룬ӦÖúÖ¸Êý +1 gruyclewee: ½ð±Ò+50, ¡ïÓаïÖú 2014-08-29 08:51:46
|
|
![]() |
||
|
9Â¥2014-08-29 08:09:11
|
|
|
gruycleweeÈÙÓþ°æÖ÷ (ÎÄ̳¾«Ó¢)
|
||
![]() |
||
|
10Â¥2014-08-29 08:51:35
|
|
|














»Ø¸´´ËÂ¥

10