| 查看: 2108 | 回复: 10 | |||
[求助]
机械制造工艺问题 已有3人参与
|
|||
|
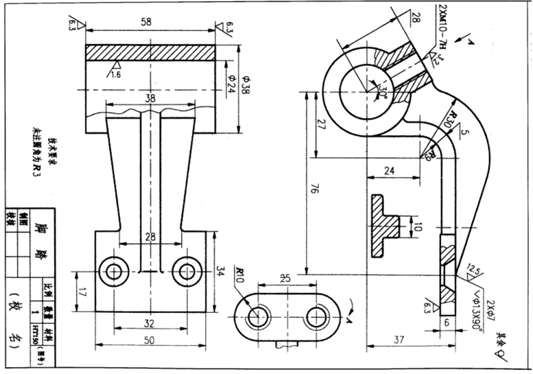
要加工一个内螺纹,螺纹孔中心线上引出标注为:2XM10-7H,粗糙度3.2。我想知道: 1. 7H和3.2的粗糙度指的是加工螺纹前所钻孔的公差和粗糙度还是螺纹的? 2. 钻孔后需不需要粗绞或精绞? 从钻孔到加工螺纹完成的工序是什么? 求好心人解答 课设图片.png |
» 猜你喜欢
第五届自动化、控制与通信工程国际研讨会(lWACCE 2026)
已经有0人回复
第九届机械、电子和工业工程国际会议(MEIE 2026)
已经有0人回复
金属材料论文润色/翻译怎么收费?
已经有51人回复
第四届光通信和光学信息处理国际学术会议(OCOIP2026)
已经有0人回复
第五届光电信息与计算机工程国际学术会议(OICE2026)
已经有0人回复
西南交通大学国家级人才团队2026年博士研究生招生(考核制)—机械、材料、力学方向
已经有3人回复
南京林业大学国家级青年人才团队招收2026年生物质转化/炭材料/储能等方向博士生
已经有15人回复
2026英国女王大学机械学院电池储能玛丽居里全奖博士招聘
已经有0人回复
2026英国女王大学机械学院电池储能玛丽居里全奖博士招聘
已经有0人回复
北京理工大学(珠海)诚邀全球英才依托申报2026年优青(海外)项目!
已经有0人回复
英国国王大学院士团队诚招两名材料方面的博士后
已经有0人回复
» 本主题相关价值贴推荐,对您同样有帮助:
绵阳中国工程物理研究院机械制造工艺研究所(六所)的看过来~~~求助~~~
已经有4人回复
制药厂生产车间新技术新工艺流程与操作技能应用、质量控制及设备运行维护实用全书
已经有781人回复
现代机械设计方法【转载】
已经有27人回复
浙大考博机械专业参考书问题
已经有2人回复
机械书籍
已经有61人回复
关于申请国外机械博士的一些小问题....
已经有2人回复
中国工程物理研究院机械制造工艺研究所招聘
已经有9人回复
kingjinjing
专家顾问 (著名写手)
-

专家经验: +159 - 机械EPI: 3
- 应助: 308 (大学生)
- 贵宾: 0.011
- 金币: 3935.9
- 散金: 5984
- 红花: 27
- 帖子: 1648
- 在线: 875.4小时
- 虫号: 1251690
- 注册: 2011-03-31
- 性别: GG
- 专业: 机械动力学
- 管辖: 机械
4楼2016-01-08 08:46:28
6楼2016-01-08 16:36:33
2楼2016-01-07 22:48:18

5楼2016-01-08 08:47:02
3楼2016-01-08 08:17:46
看小人书
木虫 (著名写手)
- 应助: 6 (幼儿园)
- 金币: 1082.4
- 散金: 566
- 红花: 1
- 帖子: 1815
- 在线: 287.3小时
- 虫号: 2482497
- 注册: 2013-05-26
- 性别: GG
- 专业: 机械工程
7楼2016-01-09 23:44:03
lvxc123
木虫 (正式写手)
- 应助: 7 (幼儿园)
- 金币: 4009.9
- 散金: 50
- 红花: 1
- 帖子: 693
- 在线: 237.7小时
- 虫号: 1632972
- 注册: 2012-02-21
- 性别: GG
- 专业: 机械结构强度学

8楼2016-01-10 07:33:56
9楼2016-01-13 21:48:28
杭冰
木虫 (正式写手)
- 应助: 0 (幼儿园)
- 金币: 2810.4
- 散金: 3
- 帖子: 309
- 在线: 66.9小时
- 虫号: 928455
- 注册: 2009-12-15
- 性别: GG
- 专业: 制造系统与自动化
10楼2016-01-13 22:12:09













回复此楼