±±¾©Ê¯ÓÍ»¯¹¤Ñ§Ôº2026ÄêÑо¿ÉúÕÐÉú½ÓÊÕµ÷¼Á¹«¸æ
²é¿´: 2263  |  »Ø¸´: 4

200948090107

гæ (³õÈëÎÄ̳)

[ÇóÖú] ÄóºÏ»úÓÃCADÔõô»­°¡£¬Ð»Ð»ÁË

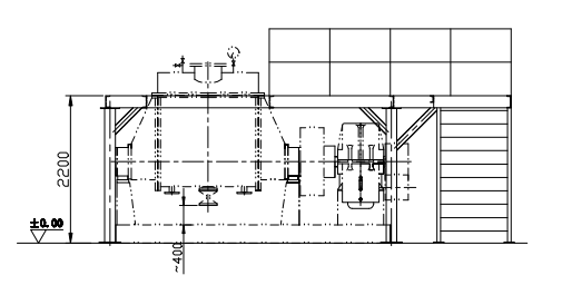
ÎÒÔÚ×ö±ÏÒµÉè¼Æ£¬Óöµ½ÁËÄóºÏ»ú£¬²»ÖªµÀ¸ÃÔõôѡÐÍ»­Í¼£¬Ð»Ð»¸÷λʦÐÖÁË
»Ø¸´´ËÂ¥

» ²ÂÄãϲ»¶

» ±¾Ö÷ÌâÏà¹Ø¼ÛÖµÌùÍÆ¼ö£¬¶ÔÄúͬÑùÓаïÖú:

ÒÑÔÄ   »Ø¸´´ËÂ¥   ¹Ø×¢TA ¸øTA·¢ÏûÏ¢ ËÍTAºì»¨ TAµÄ»ØÌû

canko75591

ľ³æ (ÖøÃûдÊÖ)

²»ÖªÄãÊÇÓÃ×÷ʲô£¬ÎÒÕâÀïÖ»ÓÐת³öÀ´µÄPDFµÄͼÐΣ»
CAD°æµÄ£¬¼Ç²»Çå·ÅÔÚÄĶùÁË£¬Äã¿ÉÒÔ°´ÎÒÔ­ÍâÐλ­Ò»Ï£¬ÎÒÄÇ»úÐͱȽϴó£¬Äã°´±ÈÀý»­Ð¡Ò»µã¾ÍÐÐÁË¡£

1.png



2.png



3.png

2Â¥2013-04-29 10:10:14
ÒÑÔÄ   »Ø¸´´ËÂ¥   ¹Ø×¢TA ¸øTA·¢ÏûÏ¢ ËÍTAºì»¨ TAµÄ»ØÌû

woshirenzjg

ľ³æ (Ö°Òµ×÷¼Ò)

¡¾´ð°¸¡¿Ó¦Öú»ØÌû

¸Ðл²ÎÓ룬ӦÖúÖ¸Êý +1
ÎÒÓÐһЩÂÝ´øÊ½»ìºÏ»ú£¬²»ÖªµÀÄãÒªµÄÊDz»ÊÇ£¿ÒªÊǵϰ¼ÓÎÒQQ£¬Ð»Ð»
3Â¥2013-04-30 06:16:03
ÒÑÔÄ   »Ø¸´´ËÂ¥   ¹Ø×¢TA ¸øTA·¢ÏûÏ¢ ËÍTAºì»¨ TAµÄ»ØÌû

maomengyang

Í­³æ (СÓÐÃûÆø)

¡¾´ð°¸¡¿Ó¦Öú»ØÌû

»­¶þάµÄÂ𣿠   ÈýάµÄÒ²¿ÉÒԵġ£
4Â¥2013-05-28 07:56:10
ÒÑÔÄ   »Ø¸´´ËÂ¥   ¹Ø×¢TA ¸øTA·¢ÏûÏ¢ ËÍTAºì»¨ TAµÄ»ØÌû

¸úËû±í°×¹ý

гæ (³õÈëÎÄ̳)

Â¥Ö÷£¬Ê¦µÜÎÒÒ²ÊǽñÄê×öµÄÉè¼Æ£¬ÒªÓõ½ÄóºÏ»úµÄCADͼֽ£¬Ä㻹ÓÐÂð£¬Âé·³¸øÎÒÒ»·Ý£¬Ð»Ð»À²
5Â¥2017-05-12 15:00:15
ÒÑÔÄ   »Ø¸´´ËÂ¥   ¹Ø×¢TA ¸øTA·¢ÏûÏ¢ ËÍTAºì»¨ TAµÄ»ØÌû
Ïà¹Ø°æ¿éÌø×ª ÎÒÒª¶©ÔÄÂ¥Ö÷ 200948090107 µÄÖ÷Ìâ¸üÐÂ
×î¾ßÈËÆøÈÈÌûÍÆ¼ö [²é¿´È«²¿] ×÷Õß »Ø/¿´ ×îºó·¢±í
[¿¼ÑÐ] µ÷¼Á Ò»Ö¾Ô¸¼ªÁÖ´óѧ357·Ö +3 .Starry. 2026-04-04 3/150 2026-04-06 07:11 by jj987
[¿¼ÑÐ] 085500»úеר˶³õÊÔ288Çóµ÷¼Á +3 GZJguo666- 2026-04-05 3/150 2026-04-05 18:06 by jkddd
[¿¼ÑÐ] 080200ѧ˶£¬»úе¹¤³Ìרҵ277·Ö£¬Çó´ø×ߣ¡ +7 Æ¿×ÓPZ 2026-03-31 7/350 2026-04-05 17:49 by liucky
[¿¼ÑÐ] 081200-11408-276ѧ˶Çóµ÷¼Á +4 ´Þwj 2026-04-04 5/250 2026-04-05 14:06 by imissbao
[¿¼ÑÐ] Ò»Ö¾Ô¸»ªÖÐũҵ´óѧ0710£¨A£©³õÊÔ329·Ö Çóµ÷¼Á +4 Ò»Ãû26¿¼ÑÐÉú 2026-04-04 4/200 2026-04-05 10:01 by barlinike
[¿¼ÑÐ] Ò»Ö¾Ô¸µç×ӿƼ¼´óѧ085600²ÄÁÏÓ뻯¹¤ 329·ÖÇóµ÷¼Á +10 Naiko 2026-04-04 10/500 2026-04-05 09:40 by sam3303
[¿¼ÑÐ] 344²ÄÁÏÓ뻯¹¤µ÷¼Á +9 µ÷¼ÁÉϰ¶«^ 2026-04-03 9/450 2026-04-04 23:10 by happyddm
[¿¼ÑÐ] ¿¼Ñе÷¼Á +5 ËÄ´¨ÍõÌÎ 2026-04-04 5/250 2026-04-04 22:18 by à£à£à£0119
[¿¼ÑÐ] 321Çóµ÷¼Á +6 ÈÏÕæÇóÉÏѧ 2026-04-03 6/300 2026-04-04 19:51 by dongzh2009
[¿¼ÑÐ] µ÷¼Á +4 ÊÇ¿ÉÀÖ²»ÊÇ¿ÉÀÖ 2026-04-04 4/200 2026-04-04 19:41 by ÌÆãå¶ù
[¿¼ÑÐ] 292Çóµ÷¼Á +11 2022080213 2026-04-04 13/650 2026-04-04 18:38 by macy2011
[¿¼ÑÐ] 280Çóµ÷¼Á +21 ¹¾ààÏþÏþ 2026-04-02 22/1100 2026-04-04 11:12 by Öí»á·É
[¿¼ÑÐ] 286Çóµ÷¼Á +8 lim0922 2026-04-02 8/400 2026-04-03 20:19 by rzh123456
[¿¼ÑÐ] 0856£¬269·ÖÇóµ÷¼Á +15 ÓÐѧÉϾÍÐÐÇóÇóÁ 2026-03-30 18/900 2026-04-03 16:50 by melodiousnow
[¿¼ÑÐ] Çóµ÷¼Á²»Ìôרҵ +3 xrh030412 2026-04-01 3/150 2026-04-03 14:40 by µªÆøÆøÆø
[¿¼ÑÐ] ¹¤¿Æ341·Öµ÷¼Á +3 Âå¶àÂÞ 2026-04-03 3/150 2026-04-03 14:20 by 1753564080
[¿¼ÑÐ] ÍÁľˮÀû328·ÖÇóµ÷¼Á +6 ¼²·çÖª¾¢²Ý666 2026-04-02 6/300 2026-04-03 11:38 by znian
[¿¼ÑÐ] 319Çóµ÷¼Á +18 Ì«ÈÝÒ×1018 2026-04-01 18/900 2026-04-03 11:18 by linyelide
[¿¼ÑÐ] 309Çóµ÷¼Á +14 ´ô¹½²»ÊÇ´÷·ò 2026-04-02 14/700 2026-04-03 09:42 by À¶ÔÆË¼Óê
[¿¼ÑÐ] 326Çóµ÷¼Á +4 áÌáÌ×Ð 2026-03-31 4/200 2026-04-01 09:58 by ÎҵĴ¬Îҵĺ£
ÐÅÏ¢Ìáʾ
ÇëÌî´¦ÀíÒâ¼û